The ALL ACCESS PROJECT

Donate to the project

The All Access Project will ensure that our City Hall/Opera House is truly accessible to all. We are constructing a new elevator tower affixed to the southwest side of the building; a new, easier walkway from the street; and inside the theater, a discreet lift from the auditorium level to both the stage and dressing room, which will now include an ADA restroom.

The Friends of the Vergennes Opera House (FVOH) is a non-profit, all volunteer team whose mission is to preserve the historic landmark as a center for the presentation of the arts and other activities that promote and celebrate a sense of community. With that in mind, we know that a significant portion of our community has been excluded from events at the Opera House because of the impractical access for those with mobility challenges. 


The Issue

At almost every event at the Opera House we are asked “Where is the elevator?” and we have to say, “Sorry, but there is none.” Then we must assist or watch patrons struggle to climb the steep staircase to the second floor.

The historic Vergennes City Hall/Opera House was built in 1897, when accessibility for persons with mobility challenges was not a priority. Nevertheless, this municipal building with City Offices on the first floor and theater/community space on the second floor has been and continues to be a community hub, hosting significant events such as the annual town meeting, community conversations, stage productions, workshops, classes, and private gatherings of all kinds. Unfortunately, many who need or want to access the community space cannot. The long staircase from the first-floor lobby is a barrier to those with limited mobility, and the current access ramp, located in the back of the building, is impractical. Visitors must access this ramp via a steep private drive which actually belongs to the multi-family house next door. One car at a time must navigate among residents’ parked cars to get close to the ramp. Then, because there is no parking available, someone must move their car to on-street parking. This is daunting and unreasonable for the many members of our community who have impaired mobility, or even those with small children in strollers. 

The driveway on the east side of the building, which leads to the current ramp, is not owned by the City Hall/Opera House.

We know from community feedback that there are folks who do not attend events at the Opera House or cannot participate in their local government simply because the access is too difficult. In Vergennes alone, this effectively ostracizes the 15% of residents with disabilities.


The Solution

Our All Access Project has three facets, each underscoring our commitment to provide complete access to the entire building. 

1. Elevator Tower

To provide a safe and truly accessible entrance, the FVOH has plans in hand to construct an elevator tower, which will be affixed to the southwest side of the building and will service both the lower level of City Hall as well as the second-story Opera House/community space. A small vestibule on both levels will accommodate visitors as they enter and exit the elevator. The walkay to this new elevator tower will be in what is now the alleyway between St. Paul’s Church the City Hall/Opera House. The tower will complement the architecture of the historic building, and will be convenient for all to use. 

2. Accessible Walkway

The alleyway between the City Hall/Opera House and neighboring St. Paul’s church will be transformed into an inviting, well lit, pedestrian courtyard to safely welcome those using the new elevator entrance. This will involve regrading and resurfacing the alleyway to make it ADA-compliant, adding brick pavers, plantings, and new lighting. This courtyard will be easily accessible from Main Street, which boasts free roadside parking. It will also create a comfortable waiting area for patrons utilizing the Tri-Valley Transit bus service.

3. Full Access for Performers

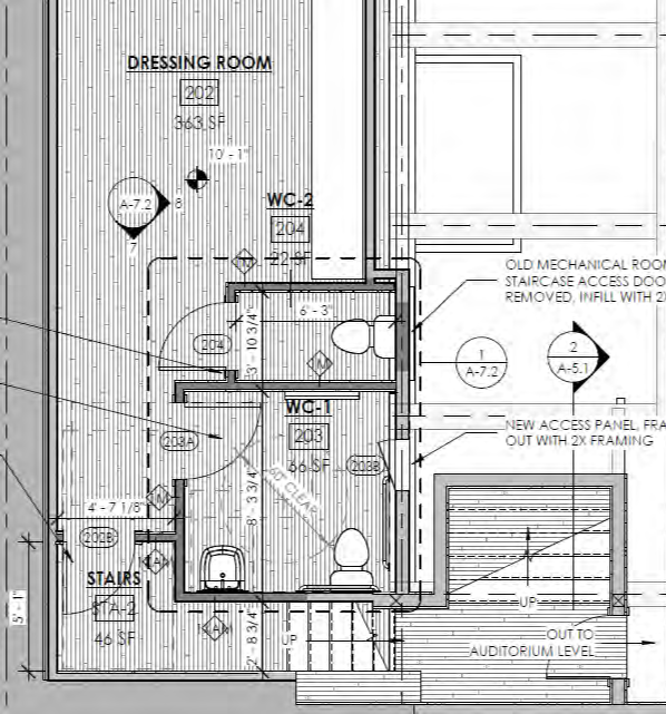
Our project also includes a phase of interior improvements to make the stage and dressing room of the Opera House fully accessible to all. A motorized lift will be installed discreetly behind a doorway at stage left, providing respectful and convenient access from the auditorium level to both the stage and dressing room levels. When complete, the Vergennes Opera House will join the ranks of a handful of performing arts spaces in the state that are able to accommodate performers with physical challenges. The dressing room itself will be reconfigured to include an ADA-compliant restroom.

Additionally, plans call for an exterior platform and ramp for safe egress from the dressing room to the outside of the building.

One of the current restrooms will be relocated to make space for the lift, and the other restroom will be enlarged to make it ADA-compliant. 


Our Mission

Although the little city of Vergennes boasts a population of only 2,599, it is the business and cultural center for the surrounding rural community of approximately 20,000 people. The Vergennes Opera House hosts the annual town meeting, a variety of stage performances, public forums, service organization activities, theater and arts camps, classes for all ages, as well as weddings and private parties. Making this important venue truly and completely accessible to everyone will not only increase the use of the building itself, but also the flow of business to our Main Street establishments. Whenever there is a performance or event in the Vergennes Opera House, the stores are bustling and the restaurants are full. This is the creative economy at work which benefits everyone. The completion of this project will enable all our citizens, regardless of physical limitations, to participate freely in events at the Opera House, strengthening our sense of community in the Little City.


Our Core Team

Volunteers for the project include: Gerianne Smart, President of FVOH; Susan Schaefer, Treasurer of FVOH; Jeff Glassberg, real estate developer; Norman LeBoeuf, restoration professional; and Suzanne Rood, FVOH board member and member of the disabled community. Through a proper RFP process, we have hired Ashar Nelson of Vermont Integrated Architecture who has completed the schematic design; Lyssa Papazian, historic preservation consultant; and Naylor & Breen Builders, who have prepared extensive plans and will act as our construction managers. We are working hand in hand with the Vergennes Partnership, and have the unanimous support of the Vergennes City Council. We have consulted with local and state representatives including professionals at the Vermont Agency of Commerce and Community Development, Preservation Trust of Vermont, as well as regional and town planning commissions, who have all enthusiastically committed to helping us throughout each phase of the project.


Estimated Budget

​The estimated cost for the entire project is approximately $2.2 million. The seed money for this project was courtesy of the 2021 Ladies’ Rally, a fundraising event where the All Access Project was officially launched. Since then, we have successfully raised over $1.8 million which allowed us to complete the planning phase, including preliminary concept designs, topography and landscape studies, architectural designs, civil engineering, historic preservation consultation, and permitting requirements. 

The All Access Project is being supported in part by a grant from the Historic Preservation Fund administered by the National Park Service, Department of the Interior, as well as a Northern Borders Regional Commission Catalyst Award. This All Access Project is also made possible in part by a grant from the State of Vermont Agency of Commerce and Community Development, Department of Economic Development, through the Community Recovery and Revitalization Program. Funding is also provided by the U.S. Department of Housing and Urban Development through a CDBG grant awarded by the Agency of Commerce and Community Development. The All Access Project is supported in part by the Vermont Arts Council and the State of Vermont and by a grant from the Walter Cerf Community Fund of the Vermont Community Foundation. Additional support is provided by the City of Vergennes, Vermont Preservation Trust, and many businesses and community members from the greater Vergennes region.

Members of our core team are ready and willing to meet with you to see how you can get involved and be a part of making the opera house accessible to everyone. Key contacts for the All Access Project:

Susan Schaefer, Treasurer: 973.727.9482  sus.schaefer@me.com
Gerianne Smart, President: 802.777.7610  getsmartvt@gmail.com


How You Can Help

Please consider a donation towards this important project by clicking on a button below.

donate
buy a brick for the courtyard

Or simply send your check made out to “Friends of the Vergennes Opera House” to:

Friends of the Vergennes Opera House
P.O. Box 88
Vergennes, VT 05491-0088